About
Work-1
Work-2
Contact
About
Work-1
Work-2
Contact
Chip Weincek

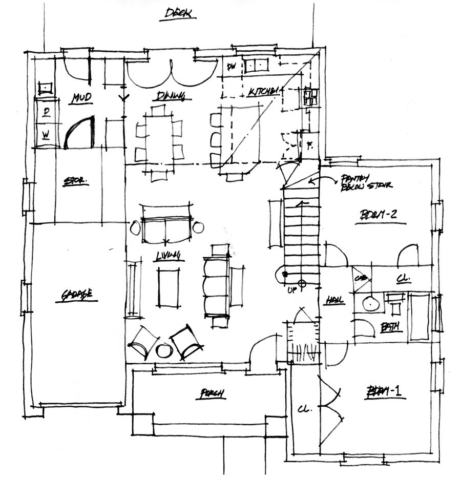
Wheat Ridge Remodel

You may also like

Lafayette Craftsman
2024
Boulder Twig Saloon
2024
Breckenridge Timberframe
2024
Broomfield Ranchette
2024
Steamboat Retail
2024
Timber Frame Homes
2024
Longmont Townhouse Remodel
2024
Basement Dig Out Addition
2024
Pine Brook Hills Remodel
2024
Kitchen & Bath Remodels
2024
↑Back to Top
LOUISVILLE | KEYSTONE | ARVADA